EPET N.º1: Alumnos de Maestro Mayor de Obras elaboraron carpeta técnica del Centro Cultural de Chepes para la Expo Carreras
En el marco de la organización de la Expo Carreras, impulsada por la Supervisión de Educación Técnica, se llevó a cabo un importante trabajo técnico desarrollado por alumnos de la EPET N.º 1 “Juan Marino Cioce” de la ciudad de Chepes. La tarea fue solicitada la Sede de Supervision de nivel medio y superior Zona VI, por la Supervisora Mónica Estrada, mediante la Gestión de la ATT Lic. Mariela Bustos, con el propósito de elaborar un croquis actualizado del edificio del Centro Cultural, que permitiera planificar la distribución de las instituciones participantes en el evento.
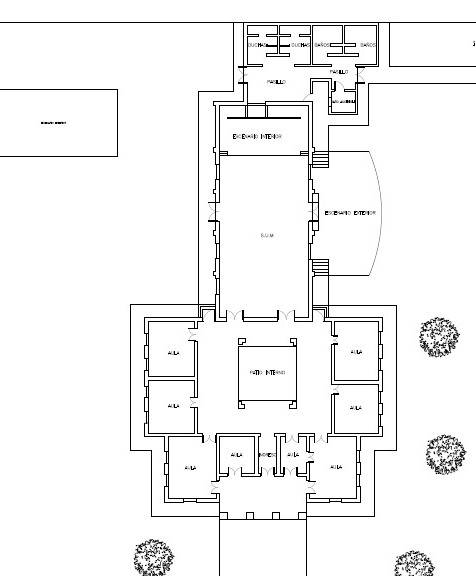
El relevamiento fue realizado por los estudiantes Delfina Zelaya Cortez, Santiago Gómez y Franco Oropel, de 6.º año A de la especialidad Maestro Mayor de Obras, quienes efectuaron mediciones y observaciones detalladas de los espacios interiores y exteriores del edificio.
El objetivo central del trabajo consistió en generar una base técnica precisa que no solo facilite la organización de la Expo Carreras, sino que también pueda servir como referencia en futuras actividades desarrolladas en el Centro Cultural. La carpeta técnica resultante recopila toda la información del relevamiento efectuado en el edificio ubicado entre las calles Juan Bautista Alberdi y Joaquín Víctor González, en la ciudad de Chepes, provincia de La Rioja. El trabajo fue validado como parte de las Prácticas Profesionalizantes de la especialidad M.M.O., aprobadas por la Dirección Técnica Provincial.
Durante el proceso se aplicaron contenidos específicos de medición, croquis y dibujo en CAD, utilizando herramientas digitales como AutoCAD 2D y Publisher, que permitieron obtener un producto de calidad profesional.
Este proyecto representa un valioso ejemplo de cómo la educación técnica se vincula con la comunidad, aportando soluciones concretas a necesidades reales. A través de estas experiencias, los estudiantes fortalecen su formación profesional y dejan una huella tangible en el entorno local, demostrando que la práctica y el compromiso son pilares del aprendizaje significativo.
















Comentarios de Facebook (0)